Ref # 2423722

New Warehouses (sectional title) to be built in Swakopmund “New” Industrial Area!

2 7th Avenue, Faan Bergh Development
Property Type
Industrial
Floor Size
333m²
Land Size
6,428m²

New Warehouses (sectional title) to be built in Swakopmund “New” Industrial Area!

  • A total of 16 warehouse units
  • Will be in various sizes and also various price ranges
  • Partly high volume

o Partly double storey with concrete mezzanine floor

  • Buying membership in a Close Corporation
  • 3-Phase electricity
  • All “Purchase Prices” to be invested on interest bearing accounts with a reputable law firm

Construction will be done in phases

PAYMENT STRUCTURE

1st phase 5 sectional title units are now available on a special

will be sold cash – full price up front only

  • Single front unit, 333 m2, N$3 050 000
  • Single unit, 333 m2, N$2,965,000
  • Single unit, 333 m2, N$2,965,000
  • Single unit, 333 m2, N$2,965,000
  • Single unit, 333 m2, N$2,965,000

Next phases will be on progress payments.

  • 10% upon signing of the deed of sale,
  • 30% once constructions commences
  • 30% at first-floor height,
  • 25% at roof height,
  • 5% on completion.

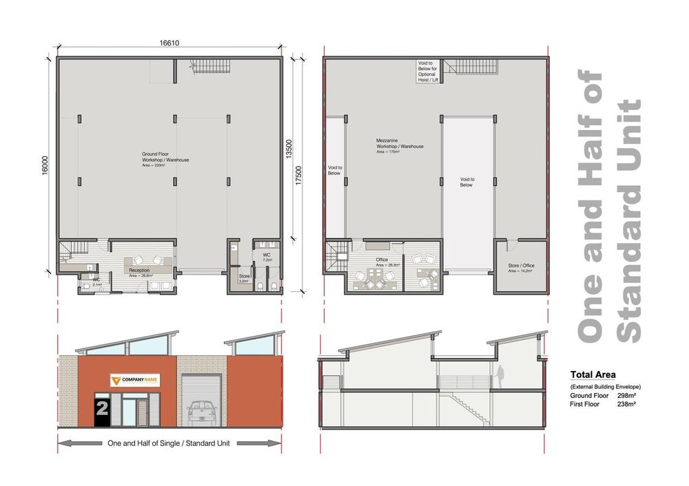
Ground Floor consists of:

  • Reception,
  • WC,
  • Kitchen area,
  • Ablution blocks
  • Warehouse section.

First/Mezzanine Floor consists of:

  • Two offices
  • mezzanine storage area.

Alle prices - Excluding VAT

Steinie Steinbach photo
Steinie Steinbach
+264 811 430 404
Steinie, a former bank manager, joined Henric Estates in 2021. He has quickly...
Gail Waldron photo
Gail Waldron
+264 811 241 933
Gail has been with Henric Estates since 1996 and has accumulated a vast group...
Make an enquiry
Interested in this property? Please fill in your details below, and we will contact you as soon as possible.
By clicking on "submit" you agree to our privacy policy.