Ref # 2397313
Property Type
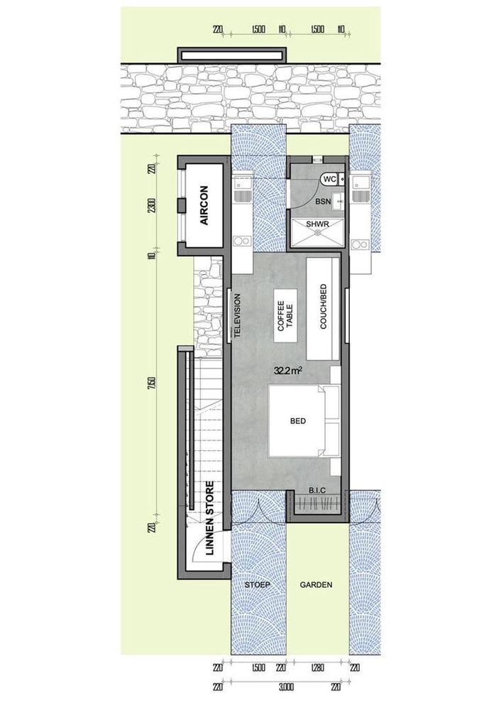
Apartment
Floor Size
35m²

1.Exiting Investment opportunity

a. Self catering Hotel within a town lodge style development

b. 82 Units

i.Totally furnished

ii.Focus on family friendly resort

2.Benefits

a. Low investment vs. high return

b. 35% occupancy = 10% return

c. 65% occupancy = 24% return

d. 75% occupancy = 26% return

e. Total pool income is shared to the owners

3.Swakopmund market

a. Projections align with conservative (35%), average (65%) and maximum (75%) occupancy scenarios,

b. Reflecting local hospitality trends

4.Options

a. Unit only – N$1,480,000 – Earns income from accomodation only

i. Lower entry cost, attracting – 50% of investors

ii. Return on investment – 10% to 26%

iii. driven by reliable accommodation income

b.Full investment – N$1,680,000 – Income from accommodation and other amenities

i. Higher return on investment – 14% to 32%,

ii. Leveraging diversified income from amenities

1. Bar/Restaurant/Conference facilities

iii. Ideal for investors seeking broader revenue streams

c.Passive income

i. Professional management by Perfect Stay ensures seamless operation

5.Process

a. Developer plans to sell 50% by January 2026

b. Buyer signs “Offer to purchase”

c. Buyer pays non-refundable N$30,000 deposit within 7 days

d. Buyer provides guarantees for the balance within 30 days

e. Plan to complete 2026

6.Levies appr.N$4,500

a. All replacements/repairs in the units “financed from the levies pool”

VAT excluded (if applicable)

TRANSFER Costs included - only should buyer be a natural person.

Steinie Steinbach photo
Steinie Steinbach
+264 811 430 404
Steinie, a former bank manager, joined Henric Estates in 2021. He has quickly...
Gail Waldron photo
Gail Waldron
+264 811 241 933
Gail has been with Henric Estates since 1996 and has accumulated a vast group...
Maxine Platt photo
Maxine Platt
+264 813 798 298
Maxine is born and raised in the charming town of Swakopmund, she has knowledge...
Werner Verwey photo
Werner Verwey
+264 812 512 450
We are happy and excited to welcome Werner in our midst. As a previous service...
Make an enquiry
Interested in this property? Please fill in your details below, and we will contact you as soon as possible.
By clicking on "submit" you agree to our privacy policy.